Baustellenfotos
Umbau Wohnung SCH
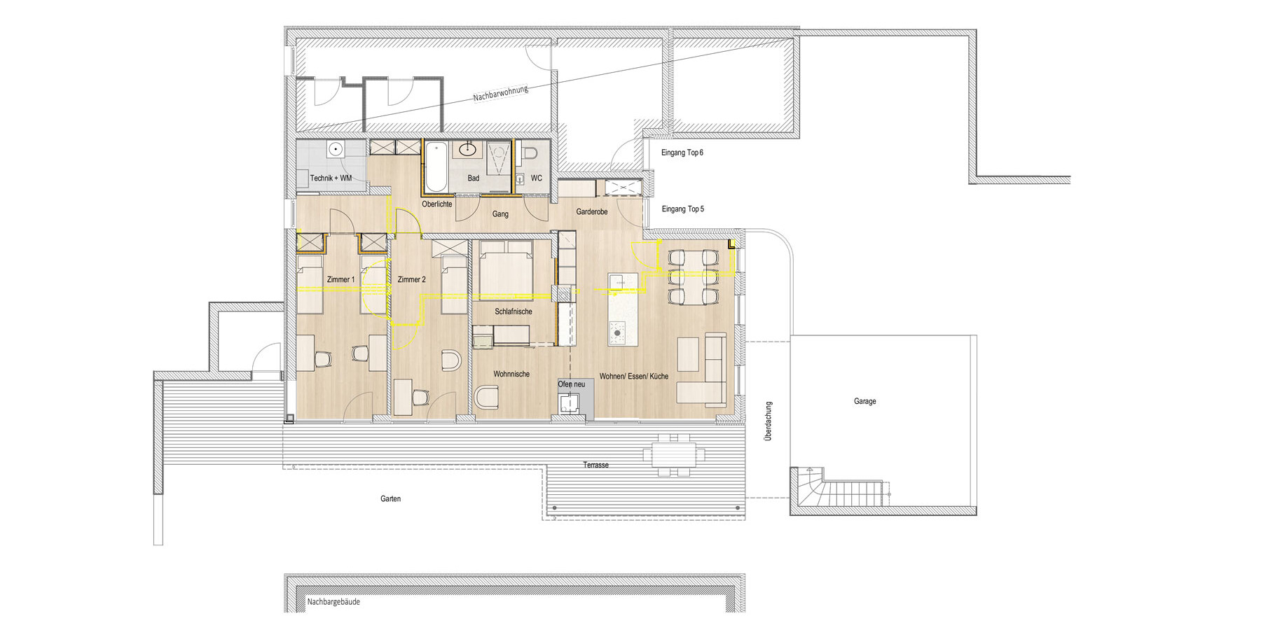
Umbau einer bestehenden, 20 Jahre alten Wohnung in einer gestaffelten Wohnanlage am nördlichen Waldrand von Innsbruck: die Wohnung selbst hat in seiner Einbettung in einen tollen Naturraum großes Potential, das im Innneren aber nie fortgeführt wurde. Die alte Struktur ist als 3-Zimmerwohnung konzipiert (2 Schlafräume) und weist bei 114m2 eine Wohnnutzfläche von lediglich 51% auf: zwei hintereinanderliegende Gänge und schlecht verteilte Sanitärräume ergeben eine verwinkelte dunkle Wohnung, eine überbordende Materialität ohne klares Konzept.
Mit umfangreichen Eingriffen wurde die Wohnung neu strukturiert: neben einem zusätzlichen Schlafraum soll sie eine moderne, offene und wohnliche Atmosphäre mit reduziertem aber prägnantem Materialkonzept erhalten. Die dunklen Gänge verschwinden, der überflüssige Gang wird den Zimmern und Wohnräumen zugeschlagen, die mehr Tiefe erhalten. Bad und WC werden neue situiert, mit einem Oberlicht und neuer Beleuchtung wird die minimierte hell gestaltetet Bewegungsfläche vergrößert. Die Detailierung der Türen und Schränke, die in der Wand verschwinden, unterstützt dieses Konzept.
Als Zentraler Raum entsteht ein großer Wohnraum mit einem eingeschobenen Möbel, das die Küche und dahinter eine Schlafnische bildet. Vor der Schlafnische entsteht ein zusätzlicher Wohnbereich mit neuem Ofen. Beim Eintreten in den offenen Garderobenbereich öffnet sich der Raum hin zur überdachten Aussenterrasse mit den angrenzenden Grünräumen.
Zudem weist die umgebaute Wohnung bei 115m2 eine Wohnnutzfläche von 78% auf (alt 51%).
MitarbeitDipl.-Ing. Stephan SiglJahr2023










































