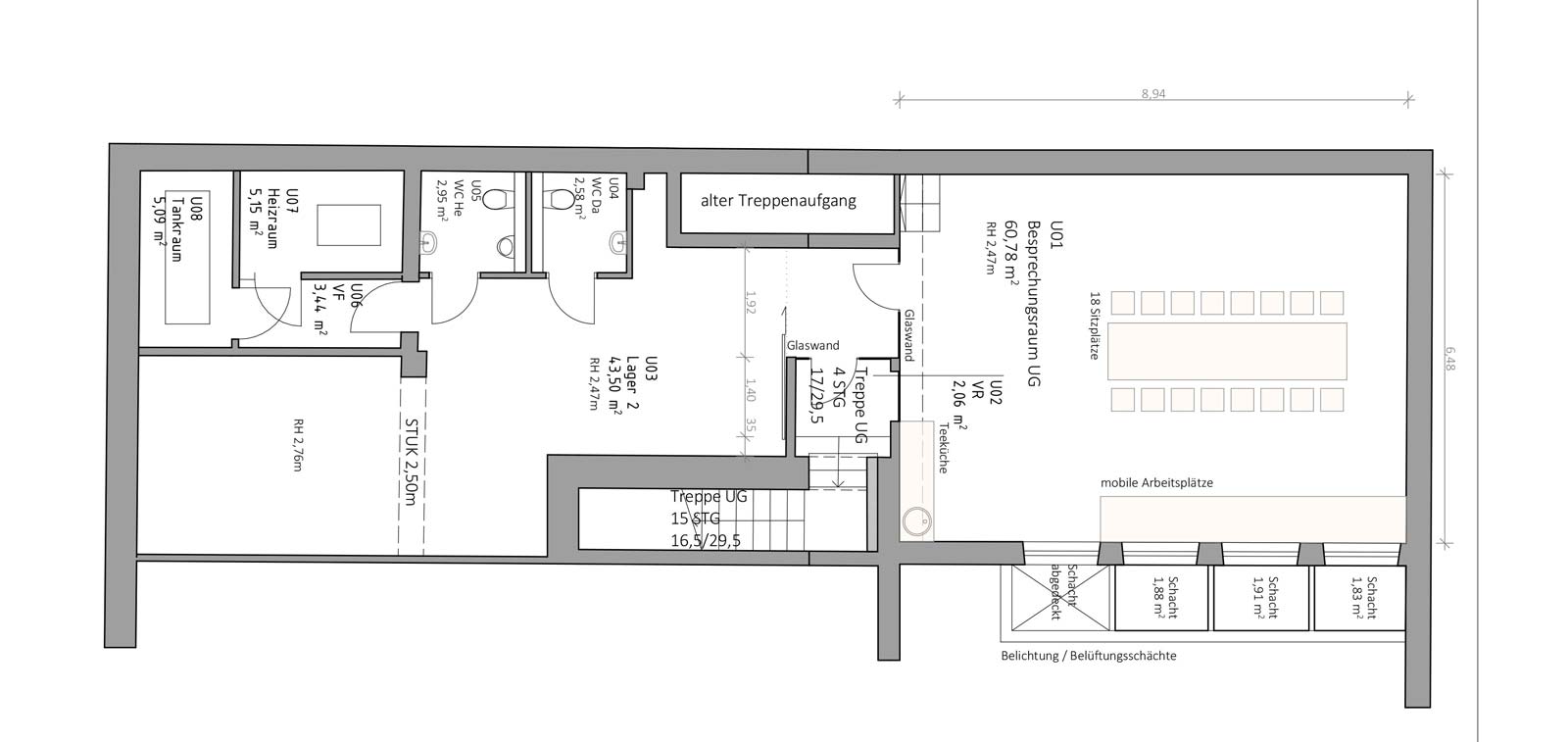
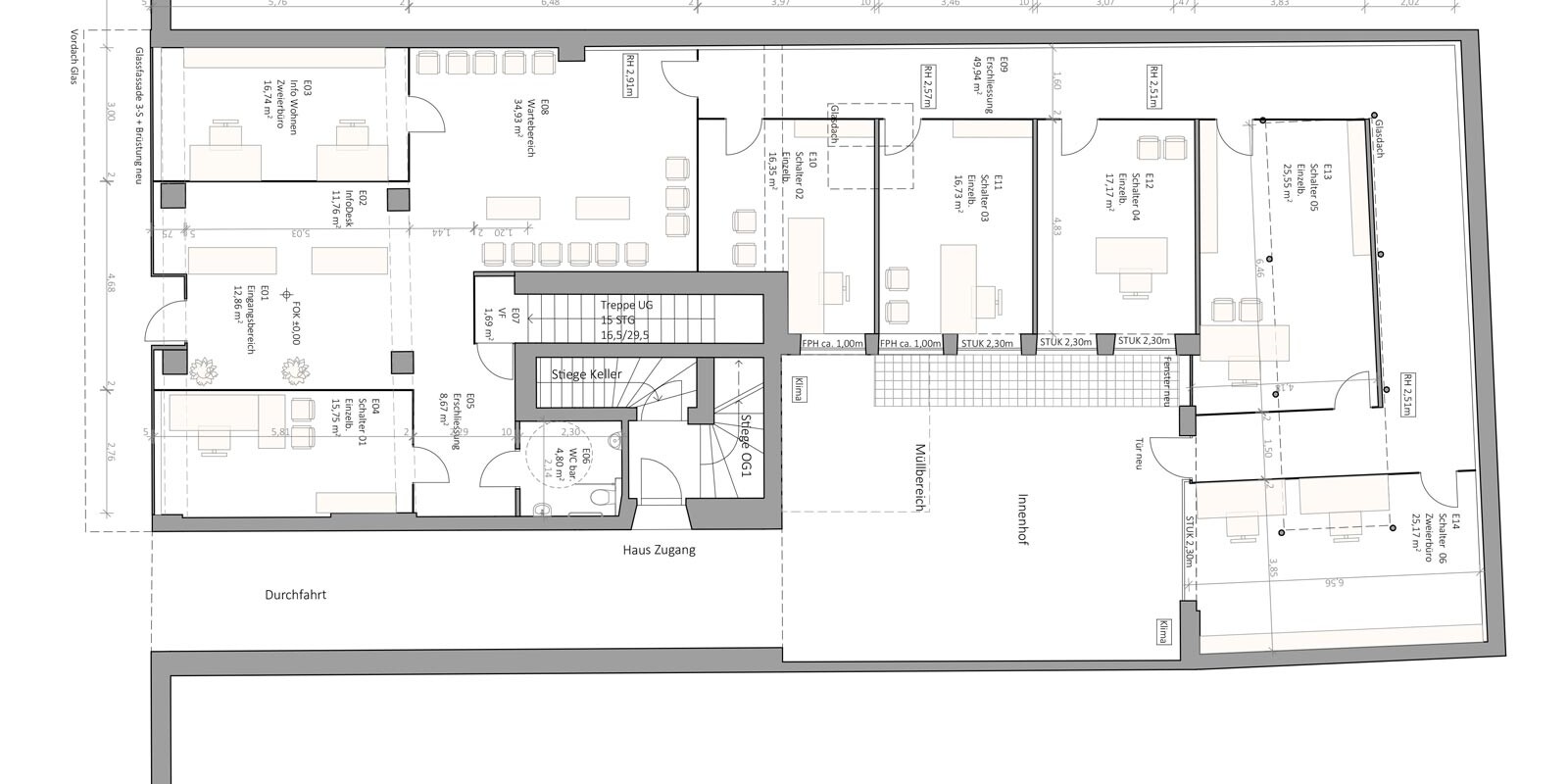
Foto Bestand  
Foto Baustelle 1  
Foto Baustelle 2  
Foto Fertigstellung  

Privacy Preference Center